上之土地区画整理事業 保留地公売
更新日:2026年2月20日
上之土地区画整理事業地内の保留地を「抽選」で公売します。
公売する保留地
保留地の概要
| 番号 | 面積 | 公売価格 | 街区画地 | 公売状況 |
|---|---|---|---|---|
| 1 | 約172平方メートル | 11,696,000円 | 37街区6-1画地 | 受付中 |
| 2 | 約172平方メートル | 11,111,200円 | 37街区6-2画地 | 受付中 |
| 3 | 約172平方メートル | 11,472,400円 | 37街区6-3画地 | 受付中 |
| 4 | 約275平方メートル | 15,207,500円 | 41街区9画地 | 受付中 |
| 5 | 約297平方メートル | 13,335,300円 | 48街区12画地 | 受付中 |
ホームページの内容が更新されるまでに時間がかかることがあります。
最新の公売状況はお電話でご確認ください。
保留地の位置

熊谷駅から北東約1.7キロメートルに位置します。
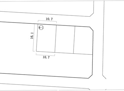
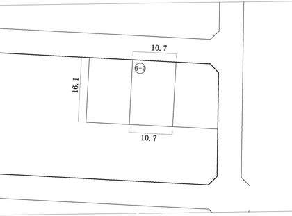
37街区6-1画地


37街区6-2画地


37街区6-3画地


41街区9画地


48街区12画地


募集要領
保留地公売の方法
購入希望者が複数いた場合は、公開抽選で決定します。
申込資格
指定期日までに確実に土地代金をお支払いいただけるかたであれば、個人・法人を問わずどなたでも申し込むことができます。
ただし、以下のかたは除きます。また、換地処分前の転売を目的とした購入はできません。
- 成年被後見人、被保佐人もしくは被補助人または破産者で復権を得ないかた
- 抽選に参加しようとする人を妨げたかた
- 抽選の公正な執行を妨げたかた
- 不正な利益を得るために連合したかた
- 暴力団員による不当な行為の防止等に関する法律第3条および第4条による指定を受けた指定暴力団およびその暴力団員並びにその暴力団と生計を同一にする配偶者(婚姻の届出をしていないが、事実上婚姻関係と同様の事情にあるものを含みます。)
- 無差別大量殺人行為を行った団体の規制に関する法律に基づく処分の対象となっている団体およびその構成員
- 税金を滞納しているかた
申込方法
窓口、郵送および電子申請システムにより受け付けます。
なお、電話・ファックスによる申込みはできません。
申込みの際は、必ず、土地公売案内書の確認をお願いします。
(1)受付期間
令和8年2月20日(金曜日)から3月2日(月曜日)まで
- 窓口受付の場合、土曜日・日曜日・祝日(休日)を除く、9時から17時まで
- 電子申請・届出サービスの場合、システムメンテナス時を除き、随時
(2)受付場所
郵便番号360-0013熊谷市中西四丁目20番15号
熊谷市土地区画整理事務所
(備考)電子申請システムを利用する場合は以下のリンクから
抽選
抽選日時 令和8年3月9日(月曜日) 10時から(受付:9時30分から)
抽選場所 熊谷市土地区画整理事務所 会議室

契約期間
保留地の売渡し決定されたかたは以下の期間中に契約を行ってください。
令和8年3月9日(月曜日)から令和8年3月23日(月曜日)まで
土地公売案内書
案内書の配布
土地公売案内書は、土地区画整理事務所に用意してあります。また、下記リンクからダウンロードできます。
まとめてダウンロード
個別にダウンロード
PDF形式のファイルを開くには、Adobe Acrobat Reader DC(旧Adobe Reader)が必要です。
お持ちでない方は、Adobe社から無償でダウンロードできます。
Adobe Acrobat Reader DCのダウンロードへ

